產品介紹
立井單繩罐籠一般用于礦井的付井提升,作提升人員、矸石、設備、材料等用。對于 中小型的礦井,罐籠也有用于礦井的主井提升,作提升煤炭之用。罐籠是礦井提升的重要設備之一。 單繩罐籠配合單繩纏繞式提升機的使用,可用于雙罐籠的提升或單罐籠配合平衡錘提升。一般用于井深不超過400米的礦井。單繩罐籠按層數可以分為單層、雙層和多層罐籠;還可以按罐籠的結構、罐道、導向裝置、進出車方式以及罐體材料的不同而分類。以每層裝一輛礦車的單層罐籠和雙層罐籠應用較多。
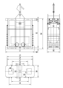
立井單繩罐籠由楔形連接裝置,抓捕器、罐體、罐內阻車器、導向裝置組成,如用于上下人,則必須設置斷繩保險器(防墜器),抓捕器根據制動繩布置形式可分為I型(對稱)抓捕和II型(對角)抓捕形式。常用單繩罐籠及配套防墜器的具體型號參數見附表。
產品屬性
立井單繩罐籠既可提升煤炭、礦石、運送設備、物料等,又可以升降人員,罐籠安裝BF型系列防墜器,在提升過程中預防提升鋼絲繩或連接裝置斷裂,防墜器能使斷繩后的罐籠平穩地懸掛在制動鋼絲繩上,不會出現墜罐事故,是中小型礦山企業立井提升中安全可靠的提升容器。

1t礦車二層二車鋼絲罐道罐籠

1t礦車一層一車鋼絲罐道罐籠

基本參數、主要尺寸
上一個:多繩罐籠 丨 下一個:立井單繩罐籠 返回列表

